6 locali in vendita

Manfredonia, Via Umberto Giordano - Croce
€ 169.000
6 locali 6 locali
129 Mq 129 Mq
1 bagno 1 bagno

6 locali in vendita

Manfredonia, Via Umberto Giordano - Croce

Descrizione annuncio

Se stai cercando un appartamento ampio e dinamico per favorire il giusto benessere alla tua famiglia, questo è l'annuncio ideale per te.

La soluzione che proponiamo in vendita è situata in via Umberto Giordano, ovvero nella zona Croce, vicino a scuole, attività commerciali, servizi pubblici e da cui è possibile raggiungere facilmente il centro, sia a piedi che con i mezzi.

L' unità abitativa è collocata al primo piano di un edificio condominiale dotato di ascensore.

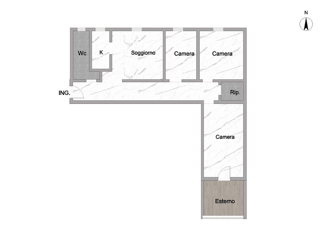
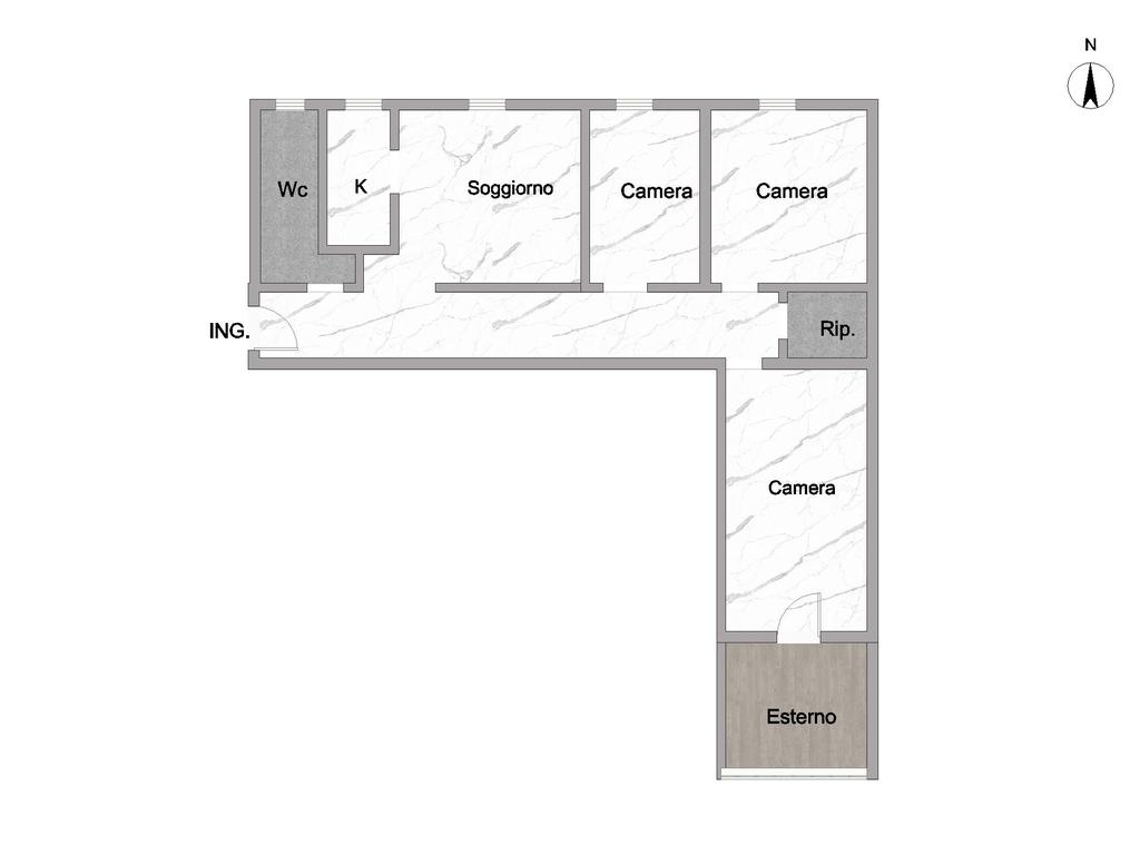
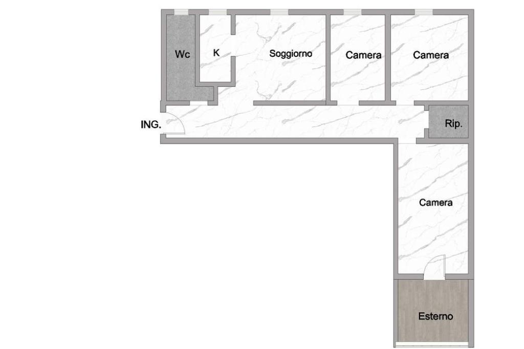
L' immobile presenta una superficie di circa 130 mq suddivisi in ampi locali: entrando vi sono cucina con sala da pranzo, bagno, e proseguendo lungo il disimpegno vi sono una camera matrimoniale, due camere, un ripostiglio cieco e un comodo soggiorno.

Gli spazi sono molto luminosi grazie alla presenza di finestre in ogni vano, inoltre il soggiorno affaccia su una veranda dove è possibile trascorrere momenti di relax all'aperto.

L' immobile è termoautonomo, quindi fornito di Gas Metano con annesso sistema di radiatori, ciò garantisce un clima favorevole nella stagione invernale.

L'appartamento è da ristrutturare, dunque può essere trasformato nell'immobile che hai sempre immaginato, in base al tuo stile e alle tue esigenze.

LA SOLUZIONE E' LIBERA SUBITO.

Siamo a vostra completa disposizione per maggiori informazioni e/o per fissare un appuntamento.
Qualora desideriate ottenere informazioni per una eventuale richiesta di mutuo, potrete usufruire della consulenza GRATUITA di un consulente Kiron, società partner di mediazione creditizia.

Seguiteci sulle nostre pagine Facebook 'Tecnorete Manfredonia' e Instagram 'TecnoreteManfredonia_tecnocasa' per rimanere sempre aggiornati.

Mostra tutto

Nelle vicinanze

Trasporto pubblico Trasporto pubblico
Manfredonia
Manfredonia
210 m
Siponto
Siponto
1,5 Km
Marino Bus Stop
Marino Bus Stop
700 m
Manfredonia Ovest
Manfredonia Ovest
3,0 Km
Scuole Scuole
Istituto Comprensivo "Perotto - Orsini"
180 m
Liceo Scientifico Galileo Galilei
430 m
Istituto Comprensivo "Don Milani - Maiorano"
540 m
Scuola Elementare Croce
590 m
Istituto Magistrale A. G. Roncalli
1,2 Km
Farmacia Farmacia
Manzo dr. Michele
160 m
Serratì dr. Eugenio
360 m
Querques dr.ssa Maria Pia
470 m
Moderna
1,0 Km
Prencipe dr. Raffaele
2,1 Km
Ospedali Ospedali
Pronto Soccordo Ospedale San Camillo De Lellis
1,5 Km
Ospedale San Camillo De Lellis
1,5 Km
Supermercati Supermercati
DiMeglio
140 m
Sigma
220 m
GranRisparmio
230 m
Supermercati
310 m
EuroSpin
860 m
Negozi Negozi
Panificio San Pio
70 m
RisparmioCasa
70 m
G. & G.
100 m
il Forno
190 m
Panificio Rignanese P. & Perla M.
260 m
Bar Bar
flamingo
730 m
Bar Impero
730 m
Ristoranti Ristoranti
Pizzeria del Largo
880 m
Il Baracchio
920 m
Calafuria
1,3 Km
Trattoria Pizzeria Regina
1,7 Km
Ristorante Crysalis
2,0 Km
Mostra tutto

Caratteristiche

Rif.:
61144776
Piano:
1 di 4 con ascensore (Piano basso)
Balconi:
2
Camere da letto:
3
Arredamento:
Assente
Condizionamento:
Assente
Mostra tutto
Prezzo Prezzo
€ 169.000
Rata mutuo Rata mutuo
€ 784 / mese
Spese annue Spese annue
€ 480
Proponi il tuo prezzoProponi il tuo prezzo

Classe Energetica

G
G
G
G
G
G
G
G
G
EP invernale del fabbricato:
EP estiva del fabbricato:
Anno di costruzione:
1975
Riscaldamento:
Autonomo
Tipo impianto:
A radiatori
Tipo alimentazione:
Metano

Ti interessa visionare l'immobile?

Fissa un appuntamento  Fissa un appuntamento

Richiedi informazioni

Clicca su Leggi per aprire l'informativa
* Questi campi sono obbligatori

Calcola il tuo mutuo

Semplice e senza impegno
Anticipo

( % )
Mutuo

( % )

pochi semplici passi

inserisci i tuoi dati
Questionario completato
Grazie per aver richiesto un appuntamento senza impegno con un nostro Consulente del Credito e Assicurativo.

Hai inserito correttamente tutti i dati necessari e a breve riceverai una e-mail con un link da convalidare per inviare i tuoi dati.
Affiliato
Studio Sant'Andrea Srls
Viale Aldo Moro, 6 71043 Manfredonia (FG)

Il nostro staff


  • Giuseppe Bottalico
    Collaboratore

  • Arianna Corvino
    Collaboratrice

  • Francesca Prencipe
    Collaboratrice

  • Michele Prencipe
    Affiliato

  • Antonella Sapone
    Collaboratrice

  • Antonio Sportelli
    Affiliato
Viale Aldo Moro, 6 71043 Manfredonia (FG)
Zona: Stazione - Croce - Comparti - Siponto
Mostra su mappa
Orari: Dal lunedì al venerdì 9:00 - 13:00 / 15:30 - 19:30 Sabato 9:00 - 13:00
Affiliato
Studio Sant'Andrea Srls
Viale Aldo Moro, 6 71043 Manfredonia (FG)

2026 Tecnocasa Franchising S.p.A. - P. IVA 08365160152 - Via Monte Bianco 60/A 20089 Rozzano (MI). Ogni agenzia ha un proprio titolare ed è autonoma. Privacy policy | Policy utilizzo | Cookie policy